Willkommen
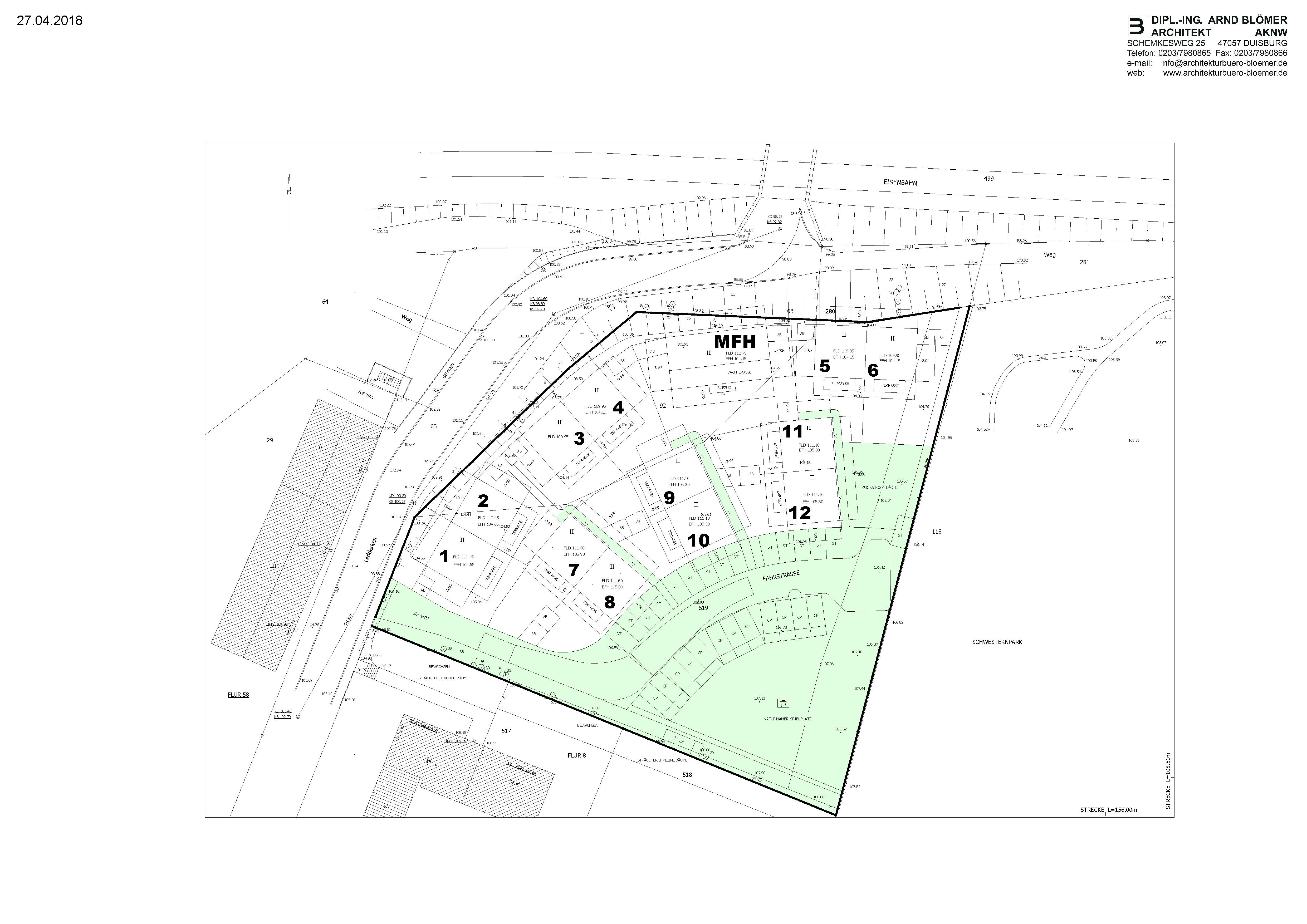
Lageplan